Zlecę budowę garażu
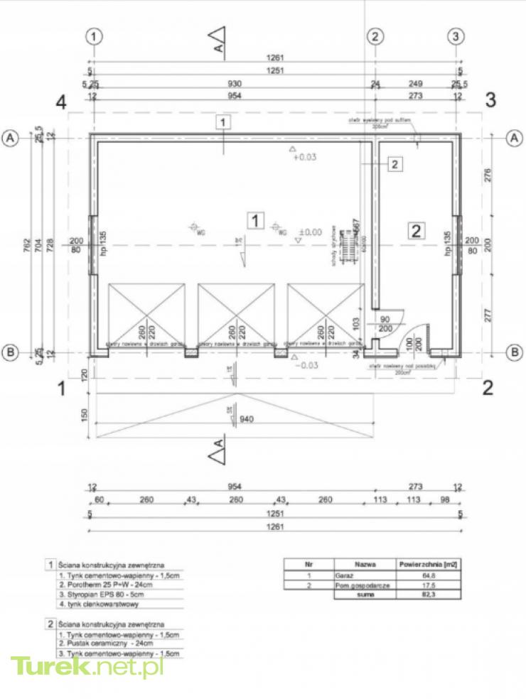
zwracam się z prośbą o przedstawienie wyceny kompleksowych prac budowlanych obejmujących wykonanie budynku od stanu zerowego aż do położenia dachu. Dokumentacja projektowa (rzut oraz wymiary) została załączona do zapytania.
Wymiary 7,6m x 12,6m
Zakres prac obejmuje m.in.:
- wykonanie prac ziemnych i fundamentów,
- realizację stanu surowego (ściany nośne, działowe, stropy),
- montaż konstrukcji dachowej wraz z pokryciem,
- wszystkie prace towarzyszące niezbędne do wykonania powyższego zakresu.




