Dom na sprzedaż Natalia gm. Władysławów
Na sprzedaż działka zabudowana domem jednorodzinnym w stanie surowym zamkniętym, z zamontowanymi oknami, położona w miejscowości Natalia, gmina Władysławów, powiat turecki.
Dom o powierzchni użytkowej ok. 123 m² został wybudowany w 2012 roku z materiałów mieszanych, pokryty blachodachówką. Budynek częściowo podpiwniczony – w piwnicy można urządzić kotłownię. Istnieje możliwość zagospodarowania poddasza na dodatkową przestrzeń mieszkalną.
Dom położony jest na końcu działki, w bardzo spokojnej, malowniczej okolicy. Idealne miejsce do stworzenia klimatycznego siedliska lub niewielkiego gospodarstwa.
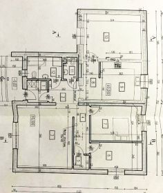
Układ pomieszczeń:
Wiatrołap – 3,54 m²
Korytarz – 5,27 m²
Pokój dzienny – 29,00 m²
Korytarz – 6,20 m²
Garderoba – 1,75 m²
Sypialnia – 11,22 m²
Sypialnia – 14,84 m²
Korytarz – 4,73 m²
Kuchnia – 17,17 m²
Sypialnia – 20,82 m²
WC – 2,38 m²
Łazienka – 5,91 m²
Powierzchnia użytkowa łącznie: 122,83 m²
Działka:
Powierzchnia działki wynosi 1,04 ha.
Dodatkowo poza terenem pod domem działka zgodnie z Miejscowym Planem Zagospodarowania Przestrzennego – około 10 arów od strony drogi przeznaczona jest pod zabudowę jednorodzinną (symbol MNU).
Pozostała część działki ma charakter rolny.
Media:
Woda: w drodze
Prąd: brak skrzynki (możliwość przyłączenia)
Kanalizacja: brak, możliwość montażu przydomowej oczyszczalni lub szamba
Cicha i spokojna wieś z pięknymi widokami, w otoczeniu pól i zieleni.
W miejscowości znajduje się szkoła podstawowa.
Doskonały dojazd do Władysławowa i Turku.
Dodatkowe informacje:
- dom wybudowany w 2012 roku
- możliwość własnej aranżacji wnętrz
- działka z dużym potencjałem inwestycyjnym
Idealna propozycja dla osób szukających ciszy, spokoju i kontaktu z naturą
Cena: 319 000 zł (do negocjacji)
Kontakt: 603 418 067 ZAPRASZAM :)











